La rencontre

Compleve multi programmatique
Saint-Vincent de Paul, 40990, France

Accompagner la mutation de Saint Vincent de Paul entre le bourg existant et l’usine Hermès qui vient s’installer sur son territoire.
Situé en bord de Dordogne, dans la zone Nord d’influence de la métropole bordelaise, Saint Vincent de Paul est un bourg en bord de route, en bord d’autoroute A10. Traversé également par la départementale 1010, le bourg s’étale le long de celle-ci, sans accroche, ni repère. La départementale finit sur un rond point sur lequel l’école, la mairie et l’église tentent de former une place de village. De cette place, nous observons le beau paysage de la Dordogne traversé par le pont Eiffel. Nous héritons ici d’un côté de la banalité de l’étalement urbain sans forme le long de l’axe routier et de l’autre d’un paysage remarquable de l’identité régionale. Ce territoire tente de s’affirmer entre les allers et venus de l’autoroute reliant les métropoles.

En 2017, l’arrivée ds ateliers Hermès sur la commune a boulversé et accéléré l’urgence de développer des services et un plan de développement pour Saint Vincent de Paul.  L’usine dynamise le territoire sur le plan économique mais fait naitre un déséquilibre entre bourg de 1000 habitant et manufacture abritant 500 emplois.

De cette dualité entre paysage et urbanité désuet, le projet se propose de concevoir d’un côté un plan de quartier qui opérera un rééquilibrage et créera un lien entre l’usine et le paysage du bourg, et d’un autre l’installation d’éléments d’activité à l’échelle de la métropole voisine. La revitalisation économique d’Hermès s’associe à ce projet portant sur la réflexion d’un lieu qui subi aujourd’hui un assemblage imprévu.

Entre l’histoire ancienne du lieu et le paysage de la Dordogne et l’arrivée impromptue d’un corps nouveau, l’usine Hermès, la rencontre s’opère.

C’est une rencontre entre les différents flux, par les arrivées piétonnes des habitants et des arrivées en véhicule des visiteurs.
Cette rencontre a permis de produire la séquence d’entrée.

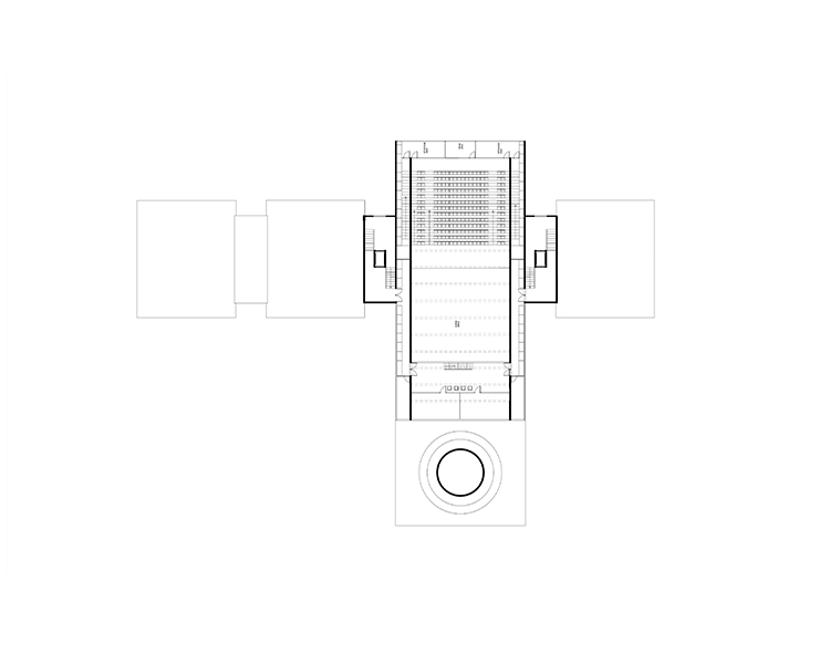
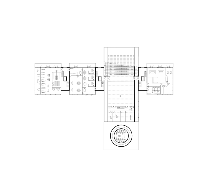
Les différentes perspectives du territoire ont permis de générer une grande allée en positionnant le projet le long de l’église. Les façades dialoguent et se partagent entre les différentes activités générer entre elles. L’architecture contemporaine épouse l’architecture religieuse.

La séquence du bâtiment se caractérise par trois blocs de circulations permettant de desservir les différents programmes, mais aussi d’esquisser la façade et de générer trois blocs porteurs de l’ensemble à travers un système de poutres treillis.